A-128 空気が澄んだ山間部にある物件

物件画像

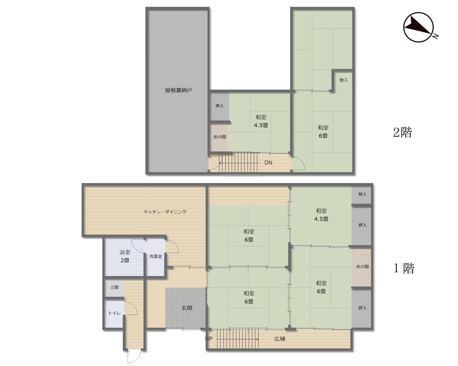
間取り図

※この間取りはイメージ図として作成したため現状と異なる場合がございます。

基本情報

希望価格
100万円
間取り
6DK
所在地
【八田エリア】岸田
土地面積
208,26㎡
建物面積
123,43㎡
築年月
不明
補修改修
多少の補修必要

詳細情報

設備・条件
ライフライン 電気、ガス、上水道、浄化槽
風呂 ガス(薪も使用可能)
トイレ 水洗
車庫 無し
インターネット
利用状況 年に数回管理
空き家バンク掲載:2025年12月
備考 家財道具の処分については応相談
土地・建物
面積 土地 208,26㎡
建物 70,50㎡(1階)
   47,93㎡(2階)
   123,43㎡(合計)
構造 木造
接道状況
都市計画
地目
用途地域
建ぺい率・容積率
付帯物件 畑、倉庫
役場までの距離 温泉総合支所 約14㎞
最寄りのバス停 青下 1分
最寄駅 JR浜坂駅 
学校 温泉小学校  約13㎞
夢が丘中学校 約12㎞ 
備考
※聞き取り等による情報もありますので、現地と違う場合があります。
※物件の内見及び交渉、WEB上での公開情報以外の情報提供は「空き家バンク利用登録」が必要です。

お役立ち情報